Products
HOME > Products
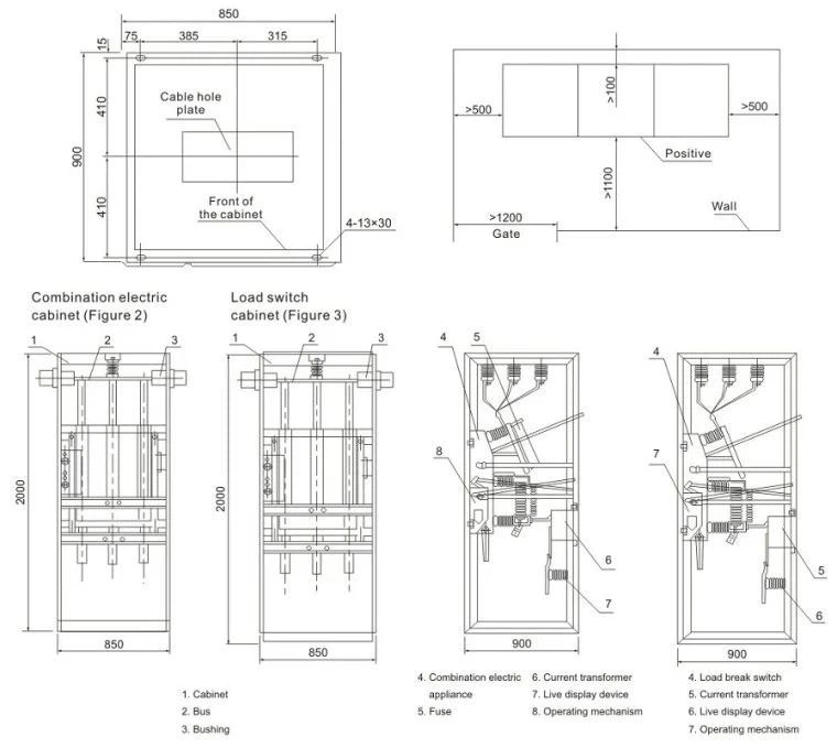
35kV Fixed Enclosed Ring Switchgear for Distribution
  • 35kV Fixed Enclosed Ring Switchgear for Distribution35kV Fixed Enclosed Ring Switchgear for Distribution

35kV Fixed Enclosed Ring Switchgear for Distribution

Comewill is a professional manufacturer in China. Our 35kV fixed enclosed ring switchgear for distribution (hereinafter referred to as "ring main unit") for power distribution. This is a high-voltage switchgear specifically designed for power distribution systems, suitable for procurement and selection needs of power infrastructure projects, and is an ideal choice for procurement decisions.

As the core equipment for distribution network control and protection, Comewill high quality 35kV fixed enclosed ring switchgear for distribution made in China can stably output reliable power in various application scenarios, such as urban power grid construction and renovation projects, industrial and mining enterprises, high-rise buildings and public facilities fully meet the core requirements of buyers for equipment performance.

This fixed-design ring main unit has become the preferred product for modern power distribution system procurement, offering you a cost-effective power infrastructure configuration.

Technical Data

Serial number Item Unit Data
1 Rated voltage kV 12 40.5
2 Rated frequency Hz 50/60
3 Rated current A 630 630/1250
4 Rated power freguencywithstand voltage(1min) Phases and to earth kv 42 95
Isolating distances 48 118
Rated lightning implusewithstand voltage Phases and to earth 75 185
Isolating distances 85 215
Power frequency withstand voltage(Control and auxiliary circuit) 2
5 Rated short-time withstand current kA 20/25 31.5
6 Rated peak withstand current kA 50/63 80
7 Duration of rated short-circuit current s 4 4
8 Rated short-circuit breaking current kA 20/25 31.5
9 Rated short-circuit making current kA 50/63 80
10 Arcing duration s 1 1
11 Rated operating sequence
0-0.3s-CO-3min-CO
12 Insulating gas
SF6
13 Annual leakage rate % ≤ 0.01
14 Standard degree ofprotection Sealed gas box
IP67
Switchgear enclosure IP4X
15 Rated inflation pressure MPa 0.03
Minimum functional level pressure 0.01
16 Rated supply voltage of auxiliary circuit V DC 24, 48, 110, 220, AC220
17 Mechanical life Circuit breaker Operation 10000 11000
Isolation switch 5000 3000
Earthing switch 5000 3000
18 Electrical endurance of circuit breaker Operation 30(E2)
19 Loss of service continuity
LSC2

Technical Operating Environment Parameters

·Ambient temperature: -10°C ~ +40°C
·Altitude: High-voltage ≤1000m; Low-voltage ≤2500m (custom design available for over-range procurement)
·Relative humidity: ≤85%
·Seismic intensity: ≤ Magnitude 8
·Environmental prerequisites: No fire/explosion hazards, no severe pollution, no chemical corrosion, no violent vibration (procurement site must meet these)

Through the tireless efforts of all our employees, we continuously improve our quality management to ensure that our 35kV fixed enclosed ring switchgear for distribution remains a source of trust for our customers. Our goal is to provide customers with the most comprehensive testing system and the most suitable solutions, maximizing customer satisfaction. We adhere to the principles of customer first, market orientation, and efficiency, and continuously cultivate our talent.

Hot Tags: metal enclosed ring main unit, China, manufacturers, factory, price, 630A Air Load Breaker Switch, Indoor 24kv Gas LBS, SF6 Disconnector Switch, Outdoor Porcelain Clad Vacuum Circuit Breaker, Single Phase Voltage Transformer 20kV, Air Insulated Vacuum Circuit Breaker Switchgear

Hot Tags: 35kV Fixed Enclosed Ring Switchgear for Distribution, China, Manufacturer, Supplier, Factory, Wholesale, Customized, in Stock, Made in China, Low Price, Quality
Send Inquiry
Contact Info
Send an inquiry to Comewill for switchgear, vacuum circuit breakers, current transformer. Get customized quotes, low prices or expert support from our China factory team.
X
We use cookies to offer you a better browsing experience, analyze site traffic and personalize content. By using this site, you agree to our use of cookies. Privacy Policy
Reject Accept